Aldeamento Turístico ***
A proposta consiste em criar um Aldeamento Turístico indo de encontro com os requisitos exigidos para classificação na categoria de Aldeamento Turístico*** (3 estrelas), contribuindo assim para o aumento da capacidade e qualidade turística no município.
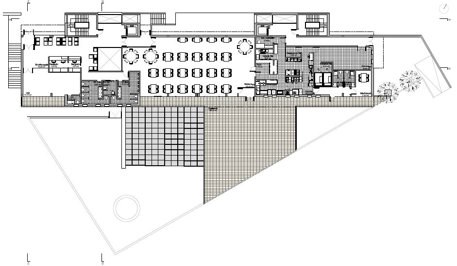
Do ponto de vista funcional o aldeamento turístico estrutura-se em quatro edifícios (1-portaria; 2-edificio de apoio e alojamento; 3 -unidade de alojamento – 1º nível; 4-unidade de alojamento – 2º nível), dando resposta a um programa funcional complexo, que engloba os seguintes sectores: unidades de alojamento do tipo apartamento, zona de utilização comum, zona de serviço e uma zona de actividades complementares.
Os edifícios propostos, compreendem características arquitectónicas, estilo de mobiliário e serviço prestado que pressupõem elevada qualidade, apoiados nos espaços complementares que apoiam o estabelecimento hoteleiro e que consistem no campo de jogos e espaço verde envolvente, Auditório, SPA, Piscina e Restaurante.
O lote onde será implantado o Aldeamento Turístico *** está inserido em Espaço Florestal, de acordo com a classificação de espaços do PDM. Os volumes construídos consistem em paralelepípedos que se desenvolve nos socalcos existentes no terreno.







